4 Parknook Close, Latrobe

In Progress
For Sale

"Patty"

The info

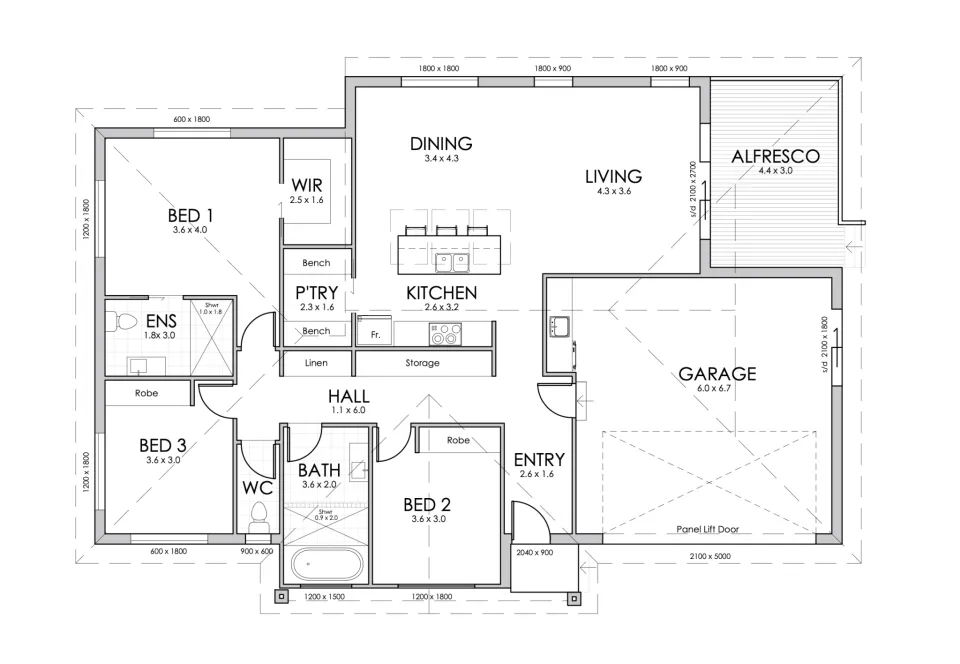
3
Bedrooms
2
Bathrooms
1
Living spaces
2
Parking

Tranquility in the heart of Latrobe

Meet 4 Parknook Close or "Patty", one of the two sister Parknook developments (check out "Parker" here).

Positioned on the corner block, this family home plan includes a light-filled, open-plan living area and three bedrooms (the master with a walk-in robe and ensuite). With its spacious galley kitchen and idyllic alfresco dining area, this home will be perfect for entertaining or relaxed family living.

The double garage and built-in robes in each bedroom mean there’s also plenty of storage for a growing family!

Download the floorplan

Download
Patty 4 Parknook Close Floorplan for website
Click to enlarge
DJI 20251126102952 0005 D Edit
Progress December 2025

Skip a step

Get in touch now

We've made it easier to get in touch. Fill out our contact form below and our team will be in touch.

Name