58 Alexander St, Shearwater

Completed
Sold

58 Alexander St

The info

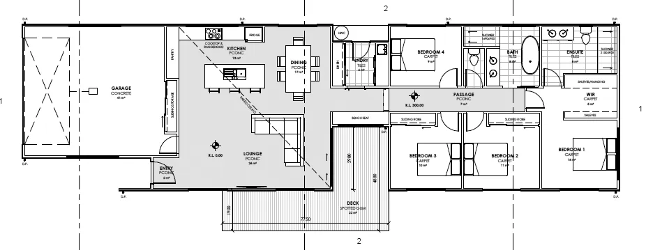
4
Bedrooms
2
Bathrooms
2
Parking
195
Total area sqm

Barn-styled bliss

There's space for everyone in this barn-styled home, where every comfort is considered and catered for. This striking home features high-end industrial vibes with concrete floors, Caesarstone bench tops, Natural Veneer and Absolute Matte Joinery.

With a combination of north-face living, cathedral ceilings, and a seamless connection to the deck, this home is the perfect example of a space designed well.

Download the floorplan

Download
58 Alexander St Shearwater Floorplan
Click to enlarge

Skip a step

Get in touch now

We've made it easier to get in touch. Fill out our contact form below and our team will be in touch.

Name